Mixed-use freehold investment with parking, let at £33,425 pa (1) On the instructions of Executors
31,31A,33 & 35 Church Road, Bishopsworth, Bristol, Avon, BS13 8JL
Lot No: 17
Property Type: Mixed Use
Contract Type: Unconditional
Sold for £480,000
• Comprising 3 shops (1 sold off) and a self-contained 3-bedroom flat.
• Shops t/a Post Office (£14,000 pa) & Café (£8,000 pa)
• 3-bedroom flat let at £11,400 with new rent agreed at £16,200 pa (1)
• Development potential subject to all necessary consents and permissions.
• Total current rent: £33,425 per annum
• To be offered for sale via Knight Frank Auctions on 18th September 2025 (unless sold or withdrawn prior).
Property Description
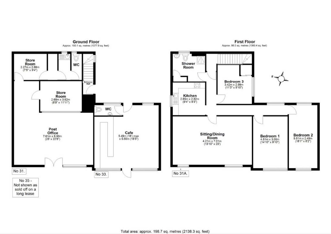
The property is arranged over ground and first floor, to provide a Post Office and a Café together with a self-contained 3-bedroom flat. (No.35 is sold off on a long lease)
The property also benefits from onsite parking.
FLOOR AREAS (Source:- VOA)
31 - Ground Floor – 57.5 sq m (619 sq ft)
31A – First Floor - 3-bedroom flat
33 - Ground – 26.4 sq m (284 sq ft)
35 – Ground & First Floor – Sold off on a long lease
TENURE
Freehold
TENANCY
31- let to Dev Bristol Limited (t/a Post Office) for a term of 15 years from 17th June 2024 at £14,000 per annum
31A (Flat) let on an expired AST – Passing rent £11,400 pa with a new rent of £16,200 pa having been agreed with the tenant but not documented. The matter will remain outstanding. (1)
33 - Let to an Individual (t/a Café Ang) for a term of 6 years from 1st March 2021 at £8,000 per annum
35 - Let to Individuals (t/a CJ Hole) for a term of 999 years from 1st February 2004 at a ground rent of £25 per annum.
Total Passing Rent: £33,425 per annum (1) subject to renewal of the AST increasing to £38,225 per annum
VAT
VAT is not applicable
EPC RATING
See legal pack
Location
The property occupies a prominent location in the heart of Bishopsworth, a well-established residential suburb located approximately 4 miles south of Bristol city centre. The property is situated on Church Road close to its junction with Whitchurch Road. Campus Pool Skateboard Park is located close by along with a veterinary clinic, Highbridge United FC, St Peters Primary School, and Bedminster Down School. Carter Business Park is 600 meters to the East.
Occupancy
Tenanted
Tenure
Freehold
EPC Rating
Refer to legal pack
Auction Details: The sale of this property will take place on the stated date by way of Auction and is being sold as on an Unconditional basis. Binding contracts of sale will be exchanged at the point of sale. All sales are subject to the Common Auction Conditions and Extra General Conditions. Auctioneer Fees and Deposit. The following deposits and non-refundable auctioneer fees apply: • 10% deposit of the purchase price, subject to a minimum of £5,000. The deposit contributes to the purchase price. • Buyer’s Fee- is £1950 including VAT. This is only payable by the successful purchaser. There are no costs to bidding for the property. The Buyer’s Fee does not contribute to the purchase price and will be considered as part of the chargeable consideration for the property in the calculation of stamp duty liability. There may be additional fees contained within the Special Conditions of Sale, which can be viewed within the Legal Pack. You are strongly advised to read the Legal Pack carefully and take professional advice before bidding. Additional Information: For full details about all auction methods and sale types please refer to the Auction Conduct Guide which can be viewed on the Knight Frank Auctions’ website. This guide includes details on the auction registration process, your payment obligations and how to view the Legal Pack. Each property sold is subject to a Reserve Price. The Reserve Price will be within + or – 10% of the Guide Price. The Guide Price is issued solely as a guide so that a buyer can consider whether or not to pursue their interest. A full definition can be found within the Auction Conduct Guide.
Auction Information
18 September 2025 11:30
The Knight Frank Auction will be broadcast live online with telephone and internet bidding
Lot Information
Contact Us
If you have any questions, call our team on 020 7861 5520
