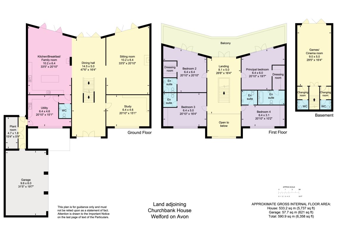
Development plot extending to approx. 1 acre with planning permission to build a substantial 4-bedroom home extending to 6,358 sq. ft
Development Plot, Land Adjoining Church Bank House, Binton Road, Welford on Avon, Warwick, Warwickshire, CV37 8PS
Lot No: 4
Property Type: Plot
Contract Type: Unconditional
Sold for £700,000
• Development plot extending to approximately 1 acre
• Full planning permission to build a substantial 4-bedroom home extending to 6,358 sq. ft
• Beautiful views and rarely available river frontage
• Mains electricity and water
• To be sold via Knight Frank Auctions on 12th June 2025 (unless sold prior)
Property Description
With beautiful views and rarely available river frontage, this is an excellent opportunity to purchase a plot, extending to approximately an acre, with planning permission to create an exceptional family home of just over 5,700 sq. ft plus garaging.
Access to the plot is via Church Bank, a private road directly off Binton Road to the east. The sale of the site includes all outlined in red as per the plan in the particulars. The blue hatched area remains as part of Church Bank House, however full rights of access across it to the plot are granted.
Planning
Reference 23/00235/FUL granted on 09/05/2024.
Summary: Planning granted for three-storey (including basement) 4 bedroom dwelling and detached triple garage
Further information can be found in the legal pack and more information can be found using this link: https://apps.stratford.gov.uk/eplanning/AppDetail.aspx?appkey=RPAH09PMFZL00
Mains electricity and water are available to the site.
What Three Words ///chew.straying.inspected
Please note some images of the property are CGI. Plans forming part of the particulars is for illustrative purposes only. Interested parties are advised to review the plans, transfer and contract in the legal pack.
Viewings
Please contact [email protected] to arrange
Location
Church Bank is situated in the heart of Welford-on-Avon along a private road. This sought-after village has an active community which includes cricket teams, football teams, a bowls club, a garden club, and a history society. There is a fine 11th-century parish church, a Methodist chapel, a good bridlepath and footpath network, general stores, a butcher, a hairdresser and a garage. The village has three public houses, all serving good food, and one, The Bell, is renowned throughout the county. Stratford-upon-Avon has an excellent range of shopping, dining and leisure facilities, including an impressive leisure centre and The Royal Shakespeare Theatre. There is a highly regarded primary school in Welford-on-Avon, and state, grammar and private schools in the area to meet most requirements, including The Croft Prep School, Stratford Grammar School for Girls and Kings Edward VI for Boys. Birmingham International Airport is about 25 miles away, and there is an excellent railway service from convenient local stations connecting to London and the national rail network. Racing is at Stratford-upon-Avon, Warwick and Cheltenham, and there are several golf courses in the area, with Welford-on-Avon having its own 18-hole golf course. Stratford-upon-Avon 5 miles, Warwick 13 miles, Warwick Parkway Station 15 miles (Intercity trains to London Marylebone from 60 mins), Honeybourne Station 10 miles (Intercity trains to London Paddington from 1 hour 20 mins), Leamington Spa Station 15 miles, M40 (J15) 11 miles, Birmingham International Airport and NEC 26 miles, Birmingham 24 miles, (distances and times approximate).
Occupancy
Vacant
Tenure
Freehold
Auction Details: The sale of this property will take place on the stated date by way of Auction and is being sold as on an Unconditional basis. Binding contracts of sale will be exchanged at the point of sale. All sales are subject to the Common Auction Conditions and Extra General Conditions. Auctioneer Fees and Deposit. The following deposits and non-refundable auctioneer fees apply: • 10% deposit of the purchase price, subject to a minimum of £5,000. The deposit contributes to the purchase price. • Buyer’s Fee- is £1950 including VAT. This is only payable by the successful purchaser. There are no costs to bidding for the property. The Buyer’s Fee does not contribute to the purchase price and will be considered as part of the chargeable consideration for the property in the calculation of stamp duty liability. There may be additional fees contained within the Special Conditions of Sale, which can be viewed within the Legal Pack. You are strongly advised to read the Legal Pack carefully and take professional advice before bidding. Additional Information: For full details about all auction methods and sale types please refer to the Auction Conduct Guide which can be viewed on the Knight Frank Auctions’ website. This guide includes details on the auction registration process, your payment obligations and how to view the Legal Pack. Each property sold is subject to a Reserve Price. The Reserve Price will be within + or – 10% of the Guide Price. The Guide Price is issued solely as a guide so that a buyer can consider whether or not to pursue their interest. A full definition can be found within the Auction Conduct Guide.
Auction Information
12 June 2025 11:30
The Knight Frank Auction will be broadcast live online with telephone and internet bidding
Lot Information
Contact Us
If you have any questions, call our team on 020 7861 5520
